
Le Parc IV a estrenar - Piso alto
Excelente apartamento con espectacular vista a la Playa Brava.
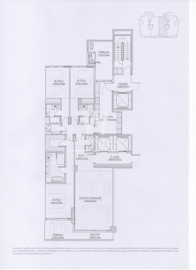
El mismo cuenta con 3 suites, toilette, living-comedor con terraza, cocina con comedor diario y terraza de servicio y garaje para 1 auto.
La planta tiene 167,60 m2 cubiertos, 28,90 m2 semi cubiertos, 16,80 m2 común, lo que totalizan 213,20 m2.
Gastos de ocupación incluidos en el precio.
Le Parc IV se ubica en la Parada 10 de la Playa Brava.
**Amenities**
Piscinas descubiertas climatizadas para adultos y para niños
Piscina cubierta climatizada con un andarivel para nado deportivo
Solárium
Juegos de niños al aire libre
Amplios jardines
Gimnasio con aparatos para ejercicios cardiovasculares y musculación
Salón para clases
Spa con sauna seco, sauna húmedo y sala de relax
Salas de masajes
Beauty center
Salas de juegos para adolescentes y para niños
Business centers con salas de reuniones y de coworking
Salones con parrillas
Servicios exclusivos
Servicio de conserjería y de mucamas
Espacio laundry
Lavadero de autos
Estacionamientos de cortesía
Servicio de playa
Sistema de seguridad y control de accesos
Circuito cerrado de TV
Barrio:
Brava
Vista:
Al Mar
Frente al Mar:
Si
Total m2:
213
Dormitorios:
3
Baños:
3
Suites:
3
Toilette:
Si
Cocina:
Definida
Living Comedor:
Si
Comedor Diario:
Si
Lavadero:
Si
PlayRoom:
Si
Garage:
Si
Playroom:
Si
Serv.Mucamas:
Si
Serv.Playa:
Si
Piscina:
Interior / Exterior
Sauna:
Si
Gimnasio:
Si
Vigilancia:
Si
Gastos Comunes
USD 0
Frecuencia Gastos
Mensual
Impuesto Inmobiliario
$ 273.270
Impuesto Primaria
$ 0